Piec Akumulacyjny Romotop FANTASY 2
Opis
Piec akumulacyjny na drewno Romotop FANTASY 2
Piece kominkowe FANTASY kładą nacisk na jasny nowoczesny design i jakość wykonania. Zrównoważone proporcje, szyba drzwiczek z nadrukiem z otwartym widokiem ognia zaprasza do chwilek relaksu i odpoczynku.
Piece kominkowe FANTASY są obkładane ceramicznymi kaflami, do wyboru jest kilka kolorów szkliwa. Dzięki temu można łatwo dopasować piec do pomieszczenia, gdzie może być dominantą, lub tylko skromnie dopełniać wystrój wnętrza. Kaflowe piece kominkowe FANTASY nadają się też do obiektów niskoenergetycznych. Dzięki centralnemu doprowadzeniu powietrza z zewnątrz CDP do paleniska nie jest zużywane powietrze z pomieszczenia. Konstrukcja pieca standardowo umożliwia podłączenie górnego lub tylnego odprowadzenia spalin. Szyba drzwiczek jest od wewnątrz owiewana doprowadzany powietrzem wtórnym, co zapobiega jej zanieczyszczaniu. Komora spalania jest wykładana kształtkami szamotowymi. Regulację doprowadzenia powietrza pierwotnego i wtórnego obsługuje się jednym elementem sterowniczym. Piec można wyposażyć w kształtki akumulacyjne dla przedłużenia czasu promieniowania ciepła w czasie po wygaśnięciu ognia.




Zestaw akumulacyjny za dopłatą 1019zł
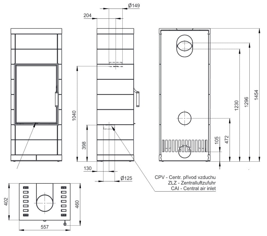
| Wysokość | 1598 mm |
| Szerokość | 548 mm |
| Głębokość | 392 mm |
| Waga | 197 kg |
| Moc regulowana | 2,9-7,5 kW |
| Średnica wylotu spalin | 150 mm |
| Średnica króćca spalinowego | 150 mm |
| Średnica wylotu CDP | 125 mm |
| Wysokość osi tylnego wylotu spalin | 1276/1414 mm |
| Wymagana siła ciągu | 13 Pa |
| Wydajność | 80,6 % |
| Spalanie drewna | 1,6 kg/h |
| Klasa efektywności energetycznej | A |
Pliki do pobrania:
Dane techniczne
| Moc | 4-11kW |
| Wylot spalin | Góra lub tył 150mm |
| Materiał wykonania | stal+żeliwo+ceramika |
| Waga | 214kg |
| Dolot powietrza | tak |
